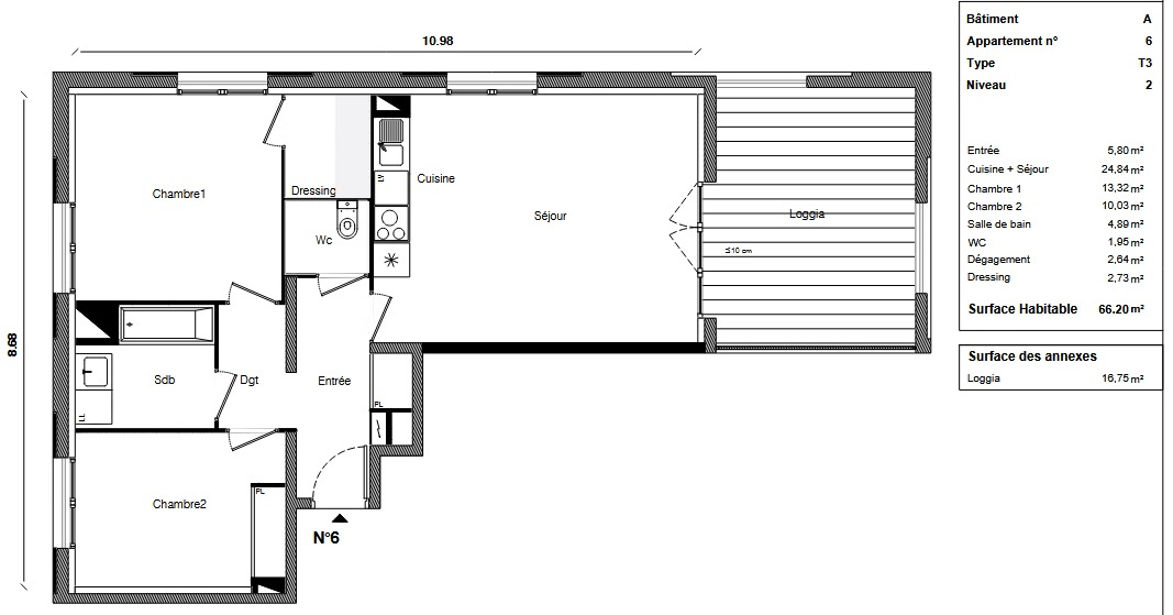
Toulouse (31300) T5 181.67M²
1 169 900 €
PRIX DIRECT PROMOTEUR :1 169 900 €
Découvrez ce charmant T5 de 181.67 m² , situé au 4e étage d’une résidence moderne, offrant un cadre de vie...
