Réf : PRCT32205

Toulouse (31400) T3 57M²

3 Pièce(s)
2 Chambre(s)
1 Salle(s) de bain

Les infos Essentielles

Caractéristiques Valeurs
Code postal 31400
Surface habitable (m²) 57 m²
Surface loi Carrez (m²) 56,89 m²
Nombre de chambre(s) 2
Caractéristiques Valeurs
Nombre de pièces 3
Etage 1
Nb de salle de bains 1
Balcon OUI
Caractéristiques Valeurs
Cave NON
Année de construction 2025
Copropriété NON

PRIX DIRECT PROMOTEUR: 352 000€

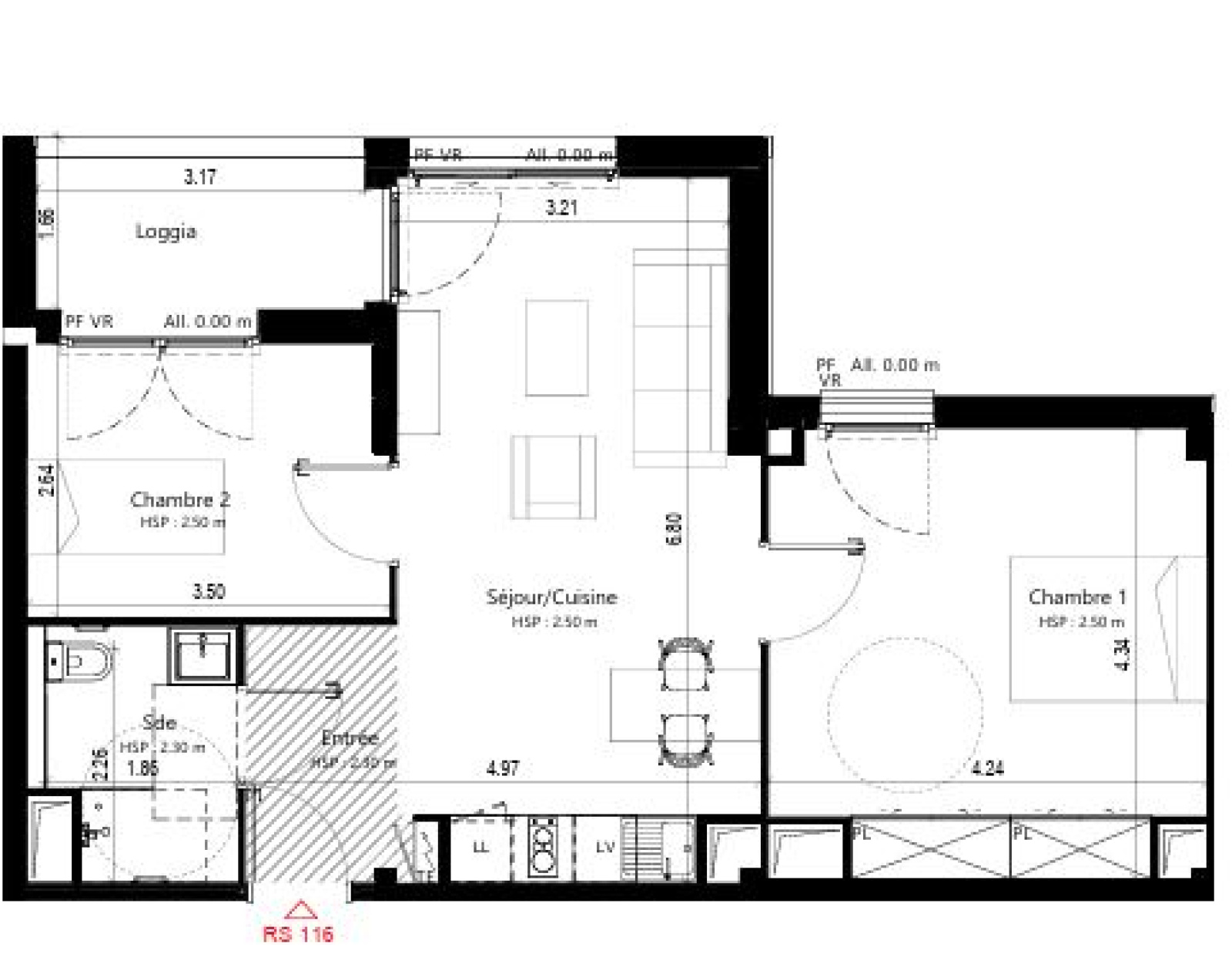
Ce T3 de 57 m², situé au 1er étage, offre un cadre de vie confortable et bien pensé.
Il se compose d’un séjour lumineux donnant sur une loggiade 5m², parfait pour profiter de l’extérieur.

Ce logement fait partie d'une résidence moderne et bien située sur la rive droite de la Garonne.

On y trouve des appartements du T1 au T4, ainsi que des T5. Pour plus d'information, n'hésitez pas à nous contacter.

La résidence bénéficie d’un emplacement idéal dans le quartier Saint-Michel.
Proche du centre-ville, des commerces et des écoles, elle combine calme, verdure et vie urbaine. Un cadre de vie agréable, entre nature et ville.

Certains logements sont proposés avec le dispositif du Bail Réel Solidaire (BRS) avec une TVA réduite à 5.5%.

Biens disponible à partir du 4e trismestre 2026

L'Orée verte immobilier depuis plus de 15 ans, agence immobilière qui vous accompagne dans vos projets de syndic de copropriété, vente d'ancien, d'achat, de location, de gestion locative à Toulouse et environs. Pour plus de renseignements, merci de contacter l'Orée verte immobilier à l'adresse mail : transaction.oreeverte@gmail.com ou par téléphone au 07 65 76 12 66 , nous vous recontacterons.

Les infos Financières

Prix de vente honoraires TTC inclus 352 100 €

Nos outils

Imprimer

Localisation Du bien

  • Commerces et santé
  • Loisirs
  • Ecoles
  • Transports
  • Pratique

Les infos Energetiques

DPE GES
DPE en cours
Rez de chaussée
salle de bain 4.29 m²

salon/sejour 22.48 m²

chambre 17.39 m²

chambre 9.08 m²

salon/sejour 3.64 m²

Intéressé(e) par Ce bien ?

* Champ obligatoire

Les informations recueillies sur ce formulaire sont enregistrées dans un fichier informatisé par La Boite Immo agissant comme Sous-traitant du traitement pour la gestion de la clientèle/prospects de l'Agence / du Réseau qui reste Responsable du Traitement de vos Données personnelles. La base légale du traitement repose sur l'intérêt légitime de l'Agence / du Réseau. Elles sont conservées jusqu'à demande de suppression et sont destinées à l'Agence / au Réseau. Conformément à la loi « informatique et libertés », vous disposez des droits d’accès, de rectification, d’effacement, d’opposition, de limitation et de portabilité de vos données. Vous pouvez retirer votre consentement à tout moment en contactant directement l’Agence / Le Réseau. Consultez le site https://cnil.fr/fr pour plus d’informations sur vos droits. Si vous estimez, après avoir contacté l'Agence / le Réseau, que vos droits « Informatique et Libertés » ne sont pas respectés, vous pouvez adresser une réclamation à la CNIL. Nous vous informons de l’existence de la liste d'opposition au démarchage téléphonique « Bloctel », sur laquelle vous pouvez vous inscrire ici : https://www.bloctel.gouv.fr Dans le cadre de la protection des Données personnelles, nous vous invitons à ne pas inscrire de Données sensibles dans le champ de saisie libre.
Ce site est protégé par reCAPTCHA, les Politiques de Confidentialité et les Conditions d'Utilisation de Google s'appliquent.
contacter l'agence
Ces biens peuvent aussi vous intéresser
Toulouse (31100)

T4 AVEC JARDIN ET 2 PARKINGS - 65.5M²