Réf : T3CPRG2205

Toulouse (31300) T3 61M² + PARKING

3 Pièce(s)
2 Chambre(s)
1 Salle(s) de bain

Les infos Essentielles

Caractéristiques Valeurs
Code postal 31300
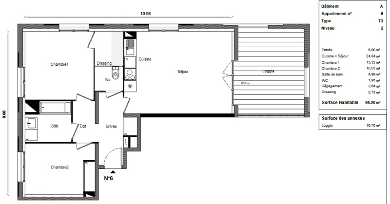
Surface habitable (m²) 60,60 m²
Surface loi Carrez (m²) 60,60 m²
Nombre de chambre(s) 2
Caractéristiques Valeurs
Nombre de pièces 3
Etage 3
Nb de salle de bains 1
Balcon OUI
Caractéristiques Valeurs
Exposition Nord-Ouest
Année de construction 2025
Copropriété NON

PRIX DIRECT PROMOTEUR: 402 800€

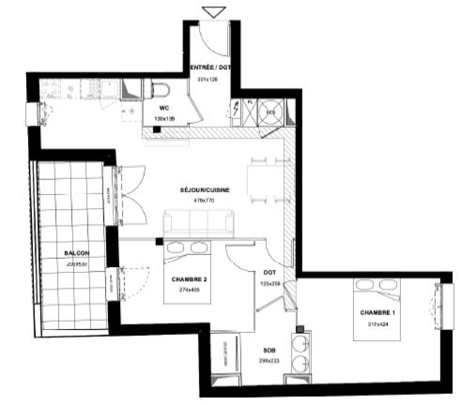
Ce T3 de 61 m² situé au 3e étage propose un cadre de vie agréable et lumineux.
La pièce de vie, s’ouvre sur un balcon de 10 m², offrant un espace extérieur idéal pour se détendre. Les chambres sont séparées de l’espace de vie pour plus d’intimité, et l’ensemble bénéficie d’un aménagement moderne et fonctionnel.

L’appartement inclut également une place de parking.

Le logement se trouve dans une résidence contemporaine située dans le quartier dynamique de Saint-Cyprien à Toulouse, à seulement deux kilomètres de la place du Capitole.
Composée de 34 appartements, cette résidence à taille humaine a été pensée pour offrir un cadre de vie harmonieux, mêlant confort, lumière naturelle et tranquillité.

À proximité, on retrouve des commerces, des écoles, des transports en commun et des espaces verts, dans un quartier vivant et recherché.

La conception respecte les dernières normes environnementales pour garantir confort thermique et performance énergétique.

La résidence propose également d'autres logements disponibles en T2, T3 et T4. N'hésitez pas à nous contacter pour plus d'informations.

BIENS DISPONIBLES A PARTIR DU 3e TRIMESTRE 2027

L'Orée verte immobilier depuis plus de 15 ans, agence immobilière qui vous accompagne dans vos projets de syndic de copropriété, vente d'ancien, d'achat, de location, de gestion locative à Toulouse et environs. Pour plus de renseignements, merci de contacter l'Orée verte immobilier à l'adresse mail : transaction.oreeverte@gmail.com ou par téléphone au 07 65 76 12 66 , nous vous recontacterons.

Les infos Financières

Prix de vente honoraires TTC inclus 402 800 €

Nos outils

Imprimer

Localisation Du bien

  • Commerces et santé
  • Loisirs
  • Ecoles
  • Transports
  • Pratique

Les infos Energetiques

DPE GES
DPE en cours
Rez de chaussée
salon/sejour 3.8 m²

salon/sejour 24.6 m²

chambre 12.6 m²

chambre 10.3 m²

salle de bain 4.9 m²

salle de bain 1.9 m²

Intéressé(e) par Ce bien ?

* Champ obligatoire

Les informations recueillies sur ce formulaire sont enregistrées dans un fichier informatisé par La Boite Immo agissant comme Sous-traitant du traitement pour la gestion de la clientèle/prospects de l'Agence / du Réseau qui reste Responsable du Traitement de vos Données personnelles. La base légale du traitement repose sur l'intérêt légitime de l'Agence / du Réseau. Elles sont conservées jusqu'à demande de suppression et sont destinées à l'Agence / au Réseau. Conformément à la loi « informatique et libertés », vous disposez des droits d’accès, de rectification, d’effacement, d’opposition, de limitation et de portabilité de vos données. Vous pouvez retirer votre consentement à tout moment en contactant directement l’Agence / Le Réseau. Consultez le site https://cnil.fr/fr pour plus d’informations sur vos droits. Si vous estimez, après avoir contacté l'Agence / le Réseau, que vos droits « Informatique et Libertés » ne sont pas respectés, vous pouvez adresser une réclamation à la CNIL. Nous vous informons de l’existence de la liste d'opposition au démarchage téléphonique « Bloctel », sur laquelle vous pouvez vous inscrire ici : https://www.bloctel.gouv.fr Dans le cadre de la protection des Données personnelles, nous vous invitons à ne pas inscrire de Données sensibles dans le champ de saisie libre.
Ce site est protégé par reCAPTCHA, les Politiques de Confidentialité et les Conditions d'Utilisation de Google s'appliquent.
contacter l'agence
Ces biens peuvent aussi vous intéresser
Toulouse (31100)

T4 AVEC JARDIN ET 2 PARKINGS - 65.5M²

Nouveauté
Toulouse (31400)

APT 3 lumineux neuf avec Loggia