Réf : VSTVRDT32205

Toulouse (31300) T3 + JARDIN PRIVATIF - 65M²

3 Pièce(s)
2 Chambre(s)
1 Salle(s) de bain

Les infos Essentielles

Caractéristiques Valeurs
Code postal 31300
Surface habitable (m²) 64,56 m²
surface terrain 53,80 m²
Surface loi Carrez (m²) 64,56 m²
Caractéristiques Valeurs
Nombre de chambre(s) 2
Nombre de pièces 3
Nb de salle de bains 1
Terrasse OUI
Caractéristiques Valeurs
Année de construction 2025

PRIX DIRECT PROMOTEUR: 244 000€

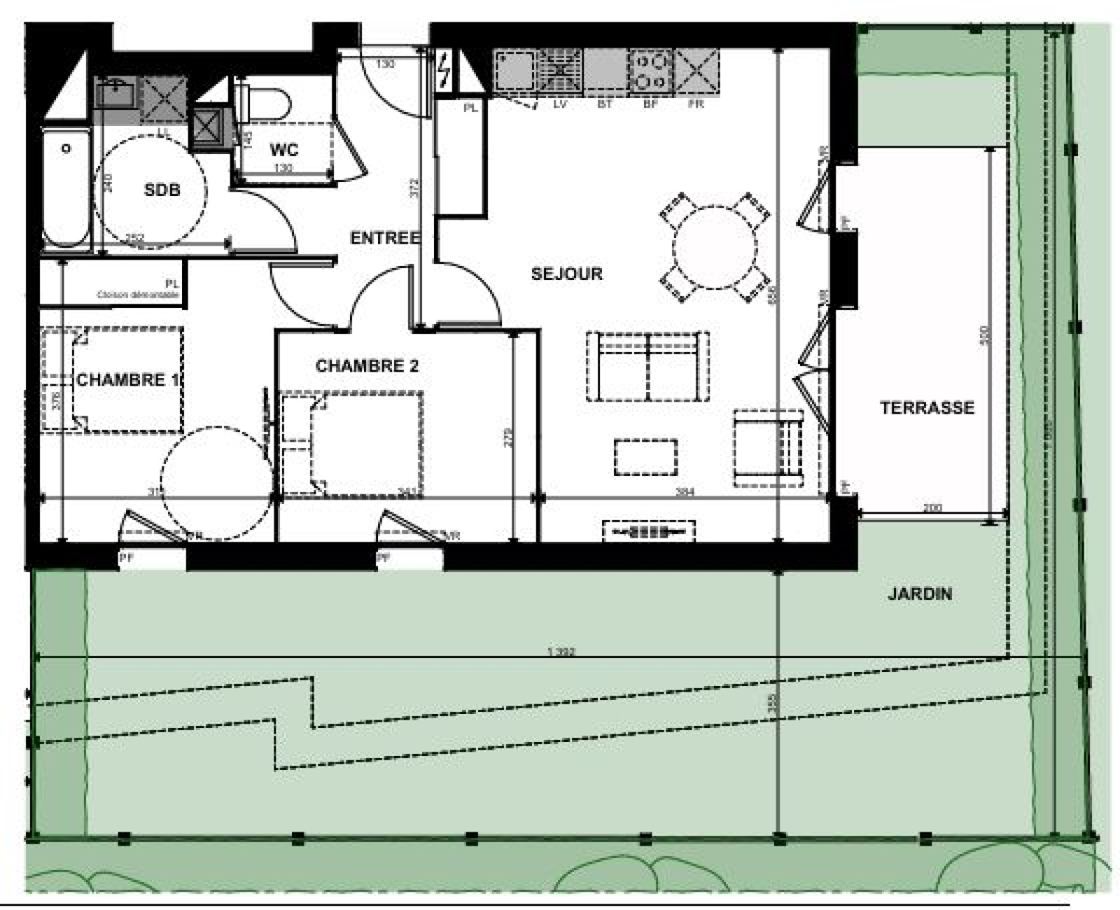
Ce T3 de 65 m², situé au rez-de-chaussé, offre un cadre de vie confortable et bien pensé.
Il se compose d’un séjour lumineux donnant sur une grande terrasse de 10 m² et sur un jardin privatif de 54m², parfait pour profiter de l’extérieur.

Ce logement fait partie d'une résidence moderne et bien située sur la rive gauche de la Garonne.
La résidence compte 147 logements répartis en cinq petits immeubles.

On y trouve des appartements du T1 au T4, ainsi que des T5 ou T5 duplex. Pour plus d'information, n'hésitez pas à nous contacter.

La résidence bénéficie d’un emplacement idéal dans le quartier Casselardit.
Proche du centre-ville, des commerces et des écoles, elle combine calme, verdure et vie urbaine. Un cadre de vie agréable, entre nature et ville.

Certains logements sont proposés avec le dispositif du Bail Réel Solidaire (BRS) avec une TVA réduite à 5.5%.

Biens disponible à partir du 4e trismestre 2026

L'Orée verte immobilier depuis plus de 15 ans, agence immobilière qui vous accompagne dans vos projets de syndic de copropriété, vente d'ancien, d'achat, de location, de gestion locative à Toulouse et environs. Pour plus de renseignements, merci de contacter l'Orée verte immobilier à l'adresse mail : transaction.oreeverte@gmail.com ou par téléphone au 07 65 76 12 66 , nous vous recontacterons.

Les infos Financières

Prix de vente honoraires TTC inclus 244 000 €

Nos outils

Imprimer

Localisation Du bien

  • Commerces et santé
  • Loisirs
  • Ecoles
  • Transports
  • Pratique

Les infos Energetiques

DPE GES
DPE en cours
Rez de chaussée
salon/sejour 7.04 m²

salon/sejour 28.72 m²

chambre 12.39 m²

chambre 9.52 m²

salle de bain 5 m²

salle de bain 1.89 m²

Intéressé(e) par Ce bien ?

* Champ obligatoire

Les informations recueillies sur ce formulaire sont enregistrées dans un fichier informatisé par La Boite Immo agissant comme Sous-traitant du traitement pour la gestion de la clientèle/prospects de l'Agence / du Réseau qui reste Responsable du Traitement de vos Données personnelles. La base légale du traitement repose sur l'intérêt légitime de l'Agence / du Réseau. Elles sont conservées jusqu'à demande de suppression et sont destinées à l'Agence / au Réseau. Conformément à la loi « informatique et libertés », vous disposez des droits d’accès, de rectification, d’effacement, d’opposition, de limitation et de portabilité de vos données. Vous pouvez retirer votre consentement à tout moment en contactant directement l’Agence / Le Réseau. Consultez le site https://cnil.fr/fr pour plus d’informations sur vos droits. Si vous estimez, après avoir contacté l'Agence / le Réseau, que vos droits « Informatique et Libertés » ne sont pas respectés, vous pouvez adresser une réclamation à la CNIL. Nous vous informons de l’existence de la liste d'opposition au démarchage téléphonique « Bloctel », sur laquelle vous pouvez vous inscrire ici : https://www.bloctel.gouv.fr Dans le cadre de la protection des Données personnelles, nous vous invitons à ne pas inscrire de Données sensibles dans le champ de saisie libre.
Ce site est protégé par reCAPTCHA, les Politiques de Confidentialité et les Conditions d'Utilisation de Google s'appliquent.
contacter l'agence
Ces biens peuvent aussi vous intéresser